Продолжая использовать наш сайт, Вы даете согласие на использование файлов cookies . Подробнее

выезды отк: аудит монтажа фасадов из фиброцемента

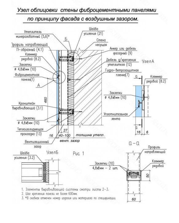
При выборе системы крепления фиброцементных панелей на подсистеме вентфасада следует учитывать:

  • тип облицовочного материала, его физико-механические свойства;
  • формат и массу панели;
  • расчетные ветровые и эксплуатационные нагрузки;
  • тип фасадной подсистемы, шаг кронштейнов;
  • возможность демонтажа отдельных участков облицовки;
  • требования нормативных документов и технических регламентов;
  • климатические условия и температурные перепады.

Соблюдение проектных решений и рекомендаций производителей обеспечивает долговечность облицовки и стабильную работу вентфасада в течение всего срока эксплуатации.

Документарная литература:

  1. СП 293.1325800.2017 Конструкции фасадные навесные вентилируемые. Правила проектирования и устройства.
  2. ГОСТ Р 56707–2015 Фасады навесные вентилируемые. Общие технические требования.
  3. СП 20.13330.2016 Нагрузки и воздействия (актуализированная редакция СНиП 2.01.07-85).
Контроль качества фиброцементной продукции осуществляется на всех циклах производства, гарантийные обязательства на товар сохраняются при соблюдении АТР на фиброцемент и правил Инструкции по хранению и обращению с плитой.

В рамках концепции long life продукта, сотрудники ОТК завода проводят обучающий экспресс-консалтинг по монтажу фцп панелей непосредственно на объекте СМР, делают проверку на соответствие технической КМД и рабочей документации, узлов примыкания плиты к элементам металлической подсистемы нвф по стандарту на плиту (ГОСТ Р 59923-2021)

Выезд на объекты происходит в плановом режиме отработки поступающих запросов, на безвозмездной основе.
В случае необходимости оперативного участия в процессе проведения монтажных осмотров, создается общий чат на базе мессенджеров.

Консультации затрагивают также вопросы выбора оборудования для распиловки плиты, клепания, применения материалов для очистки плиты и мойки фасада по окончании монтажных работ.
распространенные ошибки монтажа
объект: ЖК СИМВОЛ 
г. Москва, район Лефортово, плита с текстурой , 3000 м2, 2025 год
объект: Жилой дом по реновации
г. Москва, район Богородское, 7000 м2, плита с полиуретановым покрытием , 2025 г
объект: МКД
г. Москва, район Теплый стан, 4000 м2, плита с акриловым покрытием , 2025 г
объект: МКД капремонт фасада
г. Москва, район Вешняки, 3000 м2, плита с акриловым покрытием , 2025 г
объект: Жилой дом
г. Москва, район Соколиная гора, 3000 м2, плита с акриловым покрытием , 2025 г
объект: Жилой дом
г. Москва, район Строгино, 4000 м2, плита с акриловым покрытием , 2024 г

услуга выездного аудита фасадов из фиброцемента

Объекты комплектации фиброплитой зачастую требуют контроля в части монтажа навесной системы - от установки кронштейнов до крепления финишной фасадной облицовки. Аудит соблюдения рекомендаций завода по инсталляции плиты позволит сэкономить на переделке фасада в будущем.
замечания по монтажу
инструкция по монтажу